- Úvod
- Kamna-vložky PALAZZETTI
- Krbová kamna Erica s akumulací Palazzetti s externím vzduchem
Krbová kamna Erica s akumulací Palazzetti s externím vzduchem
- Doprava ZDARMA
- Parametry
- Komentáře 0
Krbová kamna Erica s akumulací Palazzetti s externím vzduchemdo 10 dnů89 528 Kč/ ks73 990 Kč bez DPH
Parametry
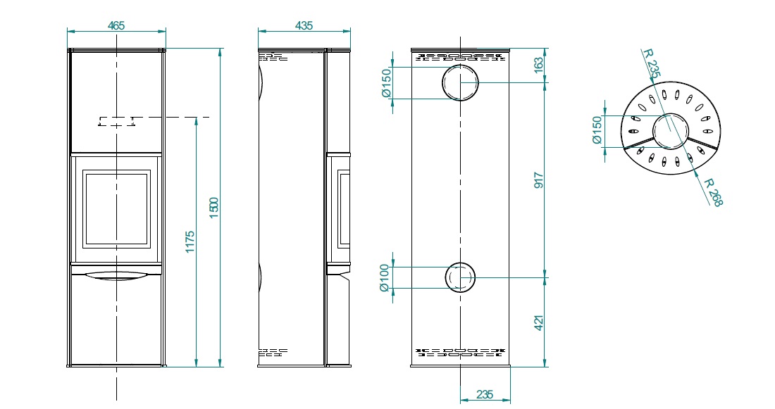
Výkon v kW/h8,3
Účinnost v %82,
Váha kg206
Palivodřevo, dřevěné brikety
Velikost kouřovodu v mm150 horní/zadní
Hodinová spotřeba v kg/h2,5
Velikost externího vzduchu v mm100
Doporučený tah komínu v Pa12 +/- 2
Hmotnostní průtok spalin g/s6,
Výstupní teplota spalin v °C253
Emise CO při 13% O2 v %0,07
Emise CO (13% O2) v mg/m3875
Zboží zařazeno v kategoriích






