- Úvod
- Kamna-vložky PALAZZETTI
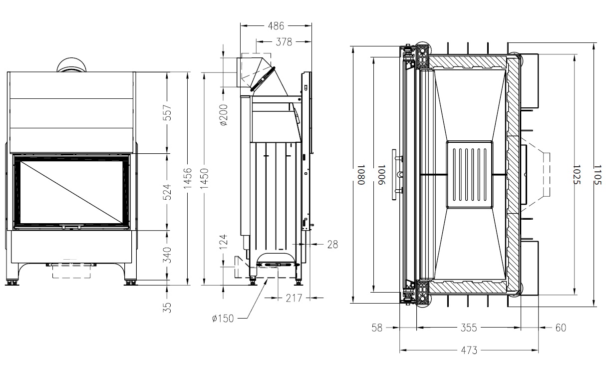
- Krbová vložka SUNNY FIRE SF 100 Front Palazzetti
Krbová vložka SUNNY FIRE SF 100 Front Palazzetti
- Doprava ZDARMA
- Parametry
- Komentáře 0
Krbová vložka SUNNY FIRE SF 100 Front Palazzettido 10 dnů132 890 Kč/ ks109 826 Kč bez DPH
Parametry
Výkon do vzduchu v kW11
Účinnost v %78
Velikost kouřovodu mm200
Palivodřevo, dřevěné brikety
Teplota spalin v °C263
Spotřeba paliva v kg/h3,48
Hmotnost v kg350
Velikost externího vzduchu v mm150
Typ spalovánítřístupňové
Typ roštupevný
Popelníkvyjímatelný
Velikost polen v mm330 - 800
Doporučený tah komínu v Pa12 +/- 2
Hmotnostní průtok spalin v g/s11,9
Emise CO při 13% O2 v %0,12
Zboží zařazeno v kategoriích





